ייעוץ אדריכלי לפני רכישת דירה
הדברים החשובים לדעת לפני רכישת דירה:
- העמדה נכונה של ריהוט  
  
- הנדסת אנוש נכונה ופונקציונליות (גורם לתחושה   נעימה יותר בבית)
 
 - התאמת הדירה לאופי וצרכי המשפחה 
 
 - תוספות הכרחיות למפרט הטכני בחוזה עם הקבלן/יזם
 
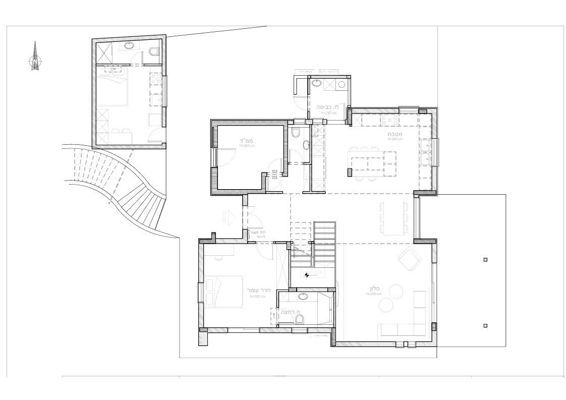
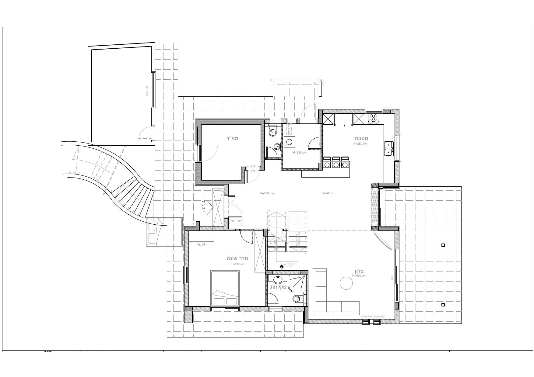
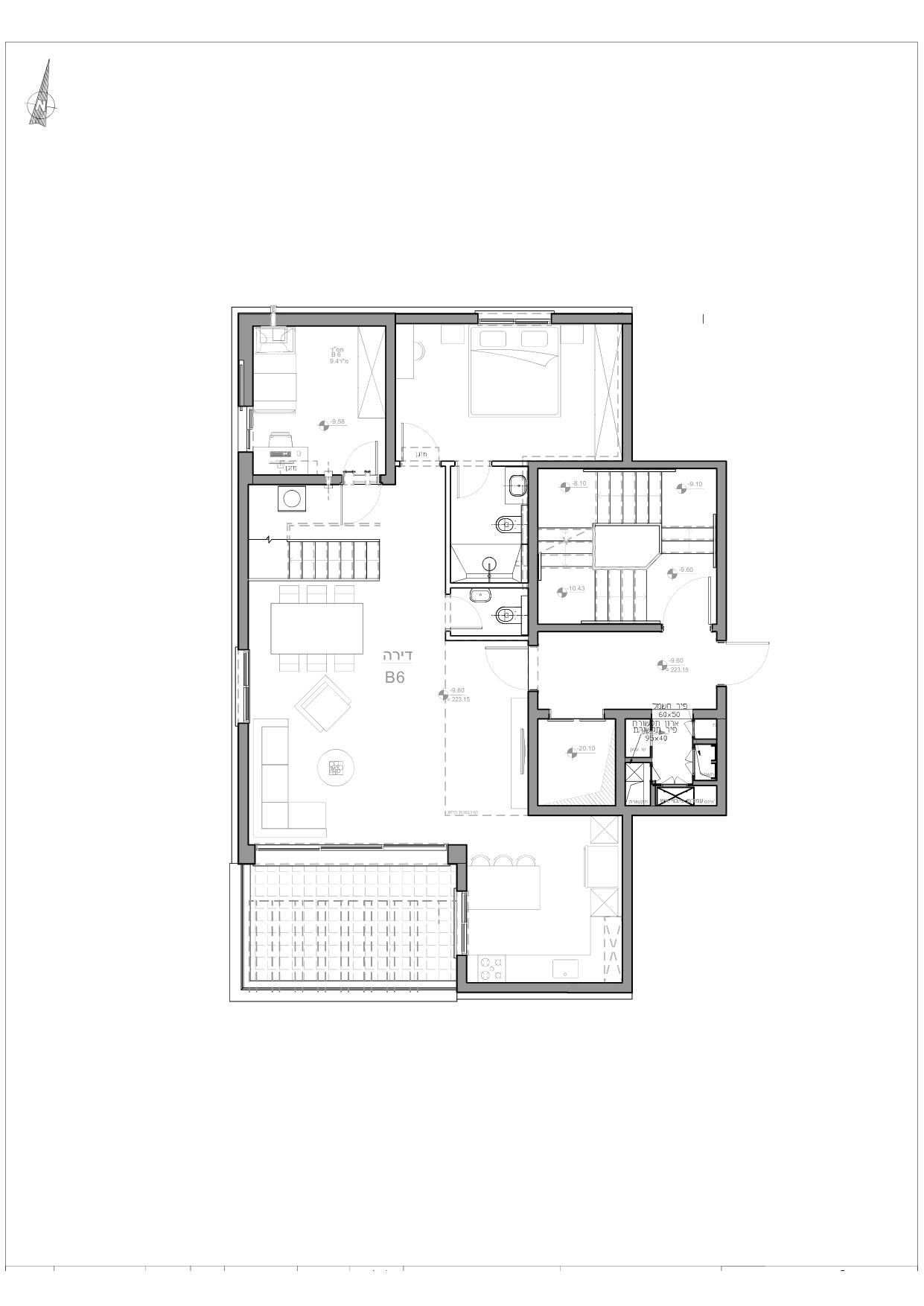
בתהליך שינויי הדיירים יש להגיש לקבלן סט תכניות שינויים שלם הכולל: תכנית חלוקת חלל והעמדת ריהוט, תכנית מטבח, תכנית מיזוג, תכנית בנייה, תכנית אינסטלציה, תכנית חשמל ותאורה, פריסות חדרים רטובים וכו'. 
  
על מנת לבצע שינויים ישימים, לעמוד בלוחות הזמנים של הקבלן, להגיש תכניות ברורות ולשמור על התקציב, חייבים להיעזר במתכנן מקצועי שישרת את האינטרסים של הדיירים ולא של הקבלן.
 
במסגרת הייעוץ:
- בחינת תכניות המכר והמפרט
- ייעוץ בבחירת הדגם המיטבי
- זיהוי הפוטנציאל לשינויים בדירה
- ייעוץ לשיפור הדירה
- מתן רשימת תוספות למפרט הטכני לעריכת החוזה עם הקבלן
- חסכון כספי לרוכשים
כמעט בכל דירה חדשה עולה הדרישה מצד הדיירים לבצע שינוי במפרט הטכני, בתכנון הדירה וברמת הגימור שלה. 
כך ניתן להתאים את הנכס לצרכים, לרצונות ולחלומות המשפחה שתתגורר בו. 
השינויים בדרך כלל כוללים: שדרוג המטבח, הזזת והוספת נקודות מים, הזזת והוספת נקודות חשמל, שדרוג ריצוף וחיפויים ולעיתים אף כוללים שינוי מחיצות ותכנון החלל מחדש.
















